Community Planner Dan Boron said the property being reviewed did not include a 1.47-acre residential lot located immediately adjacent to that corner.
Planning Commission previously reviewed this proposal in September 2022, after which the applicants withdrew it to resolve estate and site layout issues.
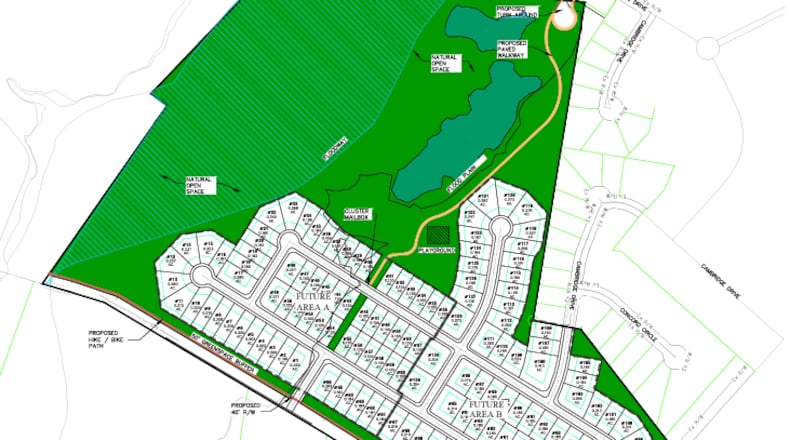
City officials said the property was annexed into Springboro from Clearcreek Twp. in 2006, with an agreement restricting development to single-family homes and allowing no more than 130 lots, with a buffer required along the Red Lion-Five Points Road portion of the property.
The Planning Commission will continue its preliminary review of the proposal at its Jan. 10 meeting, Boron said, and any recommendation to City Council would come later.
The proposed general plan submitted for review includes 130 single-family residential lots. Sixty-six of those are 6,760-square foot lots (52 feet wide and 130 feet deep), and 64 are 8,060-square feet (62 feet wide and 130 feet deep).
A multi-use trail is proposed for public use along Red Lion-Five Points Road, extending through the development to West Lower Springboro Road, according to plans. This trail would eventually connect with a similar trail to the south in the Clearcreek Reserve West subdivision. The bike lane on West Lower Springboro Road would be extended to the east corporation boundary with development of the Bailey Farm.
Additional private trails are proposed within the development, and all streets would have sidewalks as required by city code. The developer’s proposed general plan includes 45.36 acres of open space, or 55% of the subject property land area. This includes a proposal for a common area including a playground and trails around an existing pond. A significant portion of this area is defined as the floodway and floodplain of Clear Creek.
About the Author

