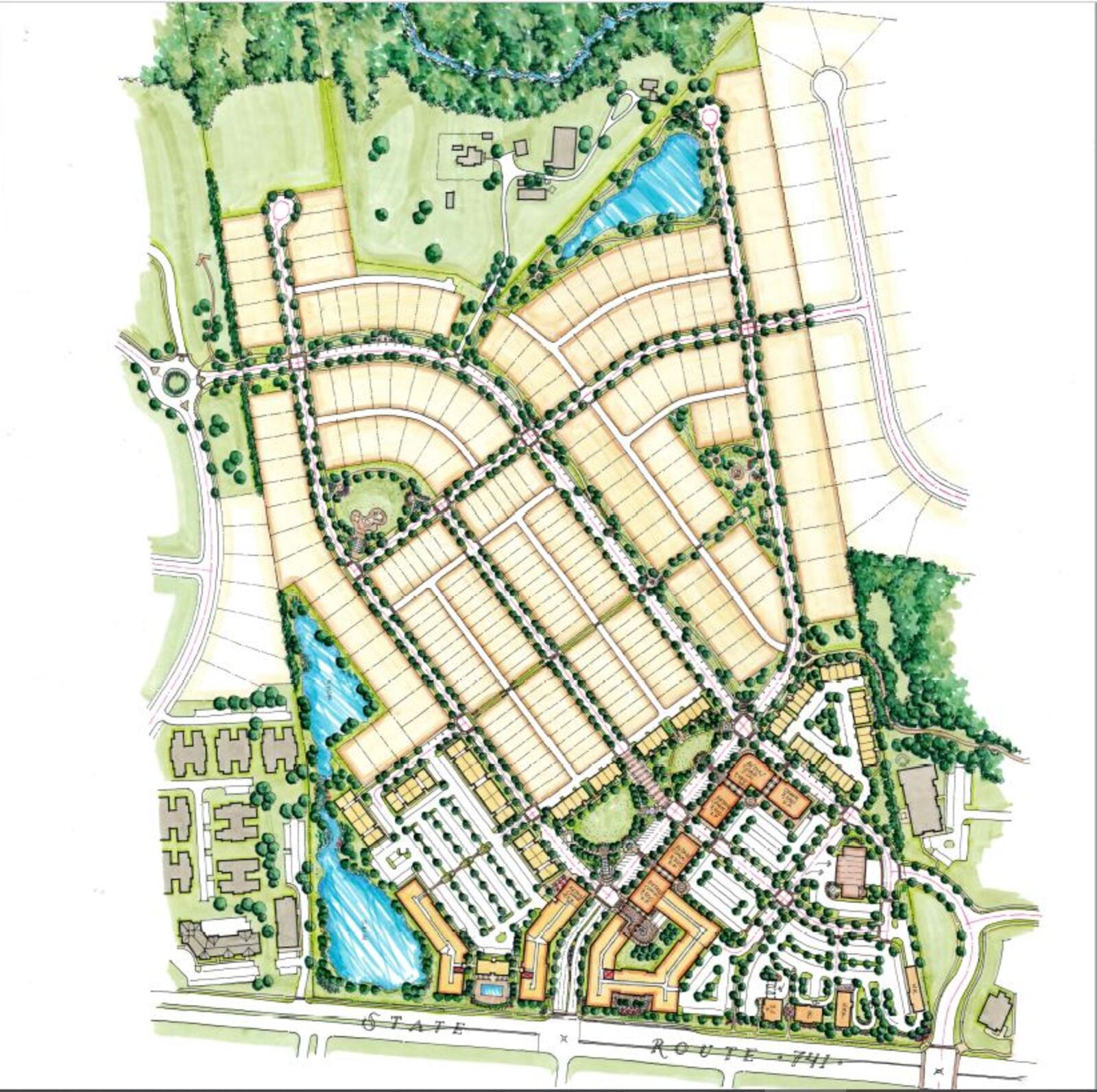
Those changes include the reduction of residential units from 835 units to 700 units; the elimination of the parking garage; reducing the height of the apartment building from four floors to three floors; removal of the 90-unit assisted living/memory care complex from the northern part of the property; elimination of flag lots; and donated five acres of park space to expand North Park.
City Planner Dan Boron said there will be no votes taken on the revised plans at Wednesday’s meeting. He said this is a multi-step process.
The revised plan also includes increasing the size of Crockett Park and included four-way stop signs as well as setting aside land for a new fire station for the city.
“We’ve taken careful consideration for updates to the plan from staff and PC comments and we’ve been intentional about our responses and improvements in this version of the master plan,” Developer Larry Dillin said.
“We do believe these are improvements to the plan, making it better and more integrated for the community,” he said. “We see this as our ‘final plan’. We are proud of it and we are anxious to hear staff and planning commission feedback.”
City officials said the revised plan also includes a 17% reduction in the number of apartment units from 324 to 270 units. The developers, Dillin LLC and BORROR, did add another 30 townhomes to the area where the formerly proposed Assisted Living Complex was to be located.
The new submittal also included updates to the Design Guidelines, traffic circle, and realigned intersections. In addition, the green space has also been increased to 28% for the multi-family area and 27% for the single family residences.
The dwelling unit breakdown includes:
- 270 multi-family dwellings in the apartment buildings limited to three-stories.
- 272 single-family dwellings that include 94 Village Center (31-foot) lots; 86 Neighborhood Lane (50-foot) lots; 44 Neighborhood Edge (60 to 110-foot) lots; and 48 townhomes.
Neighboring residents acknowledge there have been some compromise by the developers in the revised plan. More than 760 people in the subdivisions adjacent to Easton Farm have signed a petition opposing the project.
“With the apartments being reduced to three stories and 54 units less or a 17 percent reduction is a good start,” said resident Mike Hemmert. “..[I]t was so nice to finally see some compromise and a spirit of working with the Planning Commission and most importantly the hundreds of homeowners that have been addressing the issue.”
While he appreciated the developers efforts, Hemmert still feels the density is still too high when compared to the previous development plan in 2017.
Density continues as a key issue for residents, according to Justin Wiedle of Deer Trail.
Wiedle said the density in the latest plan is 41% higher than the 2017 proposed plan that was withdrawn before the Planning Commission voted.
“Density will have a big impact on the community,” he said. “My neighborhood’s biggest issue is density.”
Among the possible impact the current plan would have on Springboro include traffic and other safety issues, the parks and the school district. He said no one is talking about the impact on the schools and how it would mitigate an increase in student enrollment.
“It’s a beautiful development. No one can argue against that,” Wiedle said. “At the end of the day, there’s not a benefit for existing residents. We might get one or two new restaurants. This is the best plan to date but it doesn’t mean it’s the right one.”
About the Author
