The company behind the plan, West Chester’s Maronda Homes, expects prices of $450,000 to $500,000 per home, city documents show. The average square footage of the houses is around 2,200 to 2,400 square feet, Maronda Land Acquisition Manager Brian Hoesl told city council.
Under the proposed plan, if approved, Maronda Homes would begin construction in mid to late 2026 with 12 homes, and continue with a second phase in 2027 with the remaining 41 homes.
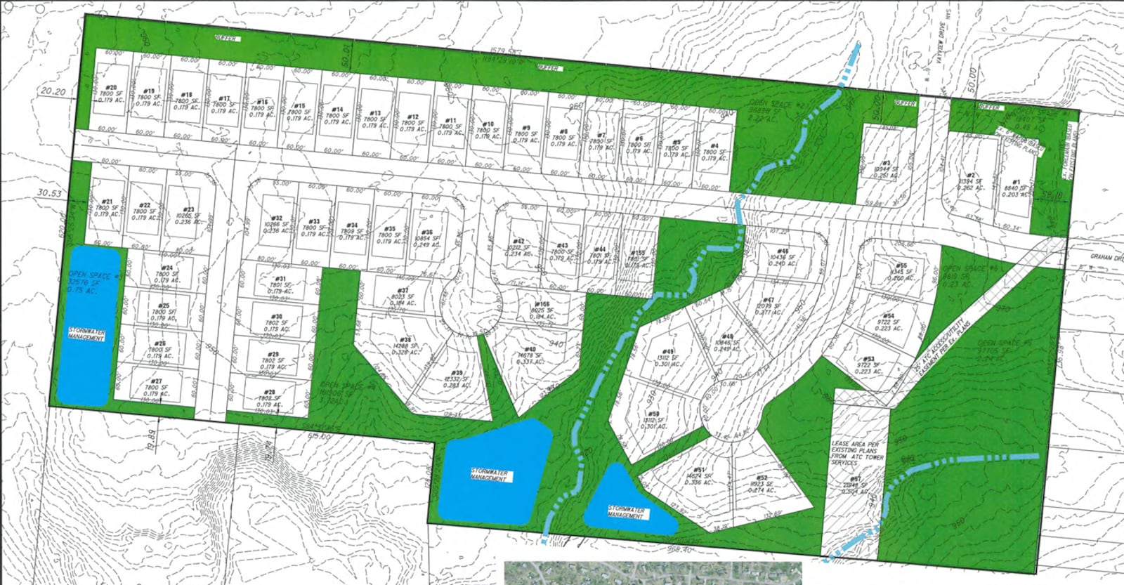
Councilman Glenn Duerr was the sole “no” vote on approving the site plan, citing concerns about the large cell tower located on the property, as well as proximity to a nearby wetland.
“One of the reasons I voted against the rezoning was an issue of ... is the (cell tower) allowed under our zoning code within a residential neighborhood?” Duerr said.
Other council members also expressed concerns with construction traffic, noting that the only entrances to the property are through other residential neighborhoods.
Pennsylvania-based homebuilder Maronda Homes has several other communities in Ohio and in the Dayton region, including Springboro, Liberty Twp., Troy and Lebanon, and has several other developments coming this year, including Huber Heights and Beavercreek Twp.
The planning commission greenlit the specific site plan in January, and zoning for the project was approved in April last year, with several conditions.
The city planning commission originally wrote a condition prohibiting heavy trucks moving in and out of the construction zone between 7 a.m. and 9 a.m. and between 3 p.m. and 5 p.m. This was originally done to account for noise, as well as traffic interfering with school bus pickup and drop off. However, the condition was not practical, Hoesl said, due to the number of contractors coming and going throughout the day.
After lengthy discussion, city council struck out this part of the condition, with Council members Glenn Duerr and Pete Bales dissenting.
About the Author


